Vermessung / Infosysteme
Verschiedene Gebäudeaufmaße auf ehem. Erba-Gelände Bamberg
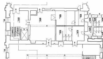
Vermessungstechnische Erfassung mehrerer Gebäude (ehem. Wohn- u. Industrienutzung) mit Erstellung sämtlicher Grundrisse und Schnitte sowie digitaler 3D-Gebäudemodelle als Grundlage für weitere Planungen.
Bestandspläne Bundesautobahnen A70, A73, A93
Teile der Autobahnen im Zuständigkeitsbereich der Autobahndirektion Nordbayern werden von uns im Bestand vermessungstechnisch erfasst und in verschiedenen Bestandsplänen dargestellt: Lagepläne, Entwässerungslagepläne, Rohrleitungskatasterpläne, Luftbildpläne mit Darstellung der Einzugsgebiete der Regenrückhalteräume.
In den Bestandsplänen sind alle topographischen Gegebenheiten und alle entwässerungsrelevanten Bauwerke und Flächen erfasst, so dass eine umfassende und schnelle Information über die Situation vor Ort ermöglicht wird. Dies ist vor allem für Unterhaltsarbeiten und Katastrophenschutz unerlässlich.
Geländeaufnahme im Bestand
Die detaillierte Erfassung topographischer und baulicher Gegebenheiten ist unerlässliche Grundlage für alle weiteren Planungen.
Die Einbindung von Lage und Höhe in das amtliche System gewährleistet die homogene Weiterverarbeitung in den anderen Fachbereichen.








